Wohnungssuche

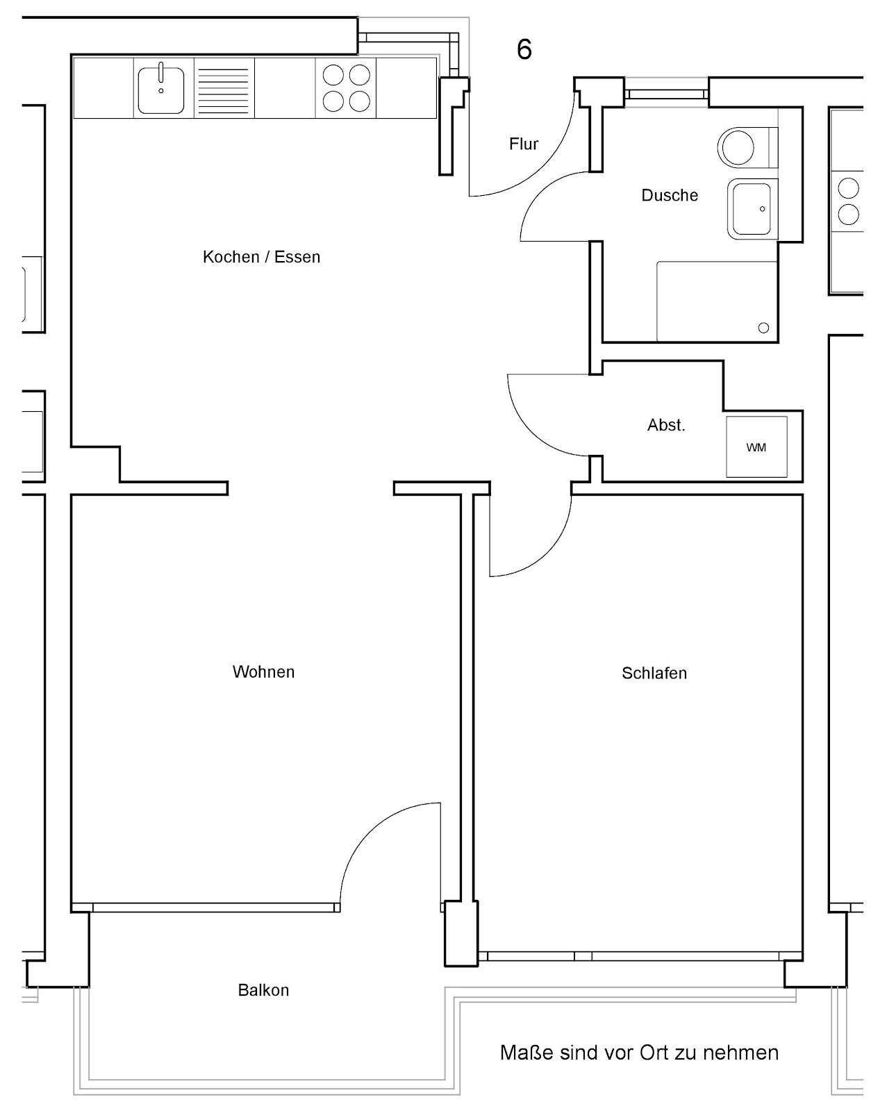
Isselstr. 3, 1 -6 - Geräumige 2 Zimmer Wohnung mit Tageslichtbad und Balkon. WBS erforderlich!

Gesamtmiete
695,47 €
Wohnfläche
61,30 m²
Zimmer
2

Am Alsterplatz
Isselstr. 3, 38120 Braunschweig


Wohnung Anfragen
  • Balkon/Terrasse
  • Dusche
  • Barrierearm

Informationen

Etage 1
Wohnfläche 61,30 m²
Baujahr 2018
Primärer Energieträger Gas
Art des Energieausweises Energiebedarfsausweis
Endenergiebedarf kWh/(m²*a) 67,20
Effizienzklasse B
Bezugsfrei 01.02.2026

Kosten

Grundmiete 493,47 €
Vorauszahlung Heizung/WW 58,00 €
Vorauszahlung Betriebskosten 144,00 €
Gesamtmiete 695,47 €
* = in drei Ratenzahlungen möglich

Objektbeschreibung

Lage

Modernes Wohnen, großzügig gestaltete Grünanlagen, viele Geschäfte und eine gute Anbindung an die Innenstadt: Das neu errichtete Quartier am Alsterplatz vereint eine Menge Annehmlichkeiten auf sich! Die Vielfalt des Wohnungsmixes macht es darüber hinaus für Singles, Paare, Familien, Jung und Alt gleichermaßen attraktiv. Der Alsterplatz ist ein aufstrebendes Quartier mit Zukunft.

Die modernen 2- bis 5-Zimmer-Wohnungen, teilweise barrierearm oder rollstuhlgerecht ausgebaut, verschaffen Singles, Paaren und Familien in allen Lebenslagen ein komfortables Zuhause. Großzügige Grünflächen und Spielplätze bieten Möglichkeiten zur Begegnung. Wer einfach nur für sich sein möchte, findet seine Ruhe wenige Minuten entfernt in der grünen Umgebung oder im weitläufigen Westpark.

Besorgungen des täglichen Bedarfs sind im nahe gelegenen Einkaufszentrum an der Elbestraße bequem zu Fuß zu erledigen. Neben Supermarkt, Bäckerei, Sparkasse und Apotheke ist vor allem der Wochenmarkt beliebt! Junge Familien freuen sich über Kindergärten, Kitas und Grundschulen in nächster Umgebung. Sogar eine Waldorfschule und eine integrierte Gesamtschule sind innerhalb weniger Gehminuten erreichbar. Der Westpark lockt mit Kunstobjekten und einem Disc-Golf-Parcours, die Raffteiche laden zum Schwimmen ein, Sportvereine, Fitnesscenter, Hockey, Skatepark und diverse Spielplätze bieten jede Menge Gelegenheit zur Freizeitgestaltung. Für Kleingartenfreunde sind die vielen Vereine in nächster Nachbarschaft optimal!

Für eine bequeme Anbindung an die Innenstadt sorgt der öffentliche Nahverkehr mit der Straßenbahnhaltestelle fast vor der Haustür. Für Pendler ist die Auffahrt auf die Stadtautobahn A 391 komfortabel, die sie fix auf die A2 und A 39 nach Hannover, Salzgitter oder Wolfsburg führt.

Lernen Sie das ganze Quartier kennen

Am Alsterplatz

Am Alsterplatz

Facettenreich. Belebt. Innovativ.

Sie verwenden einen veralteten Browser
Dies stellt ein Sicherheitsrisiko für Ihr System dar und kann zu Darstellungsfehlern auf dieser Website führen.

Bitte installieren Sie einen aktuellen Browser.