Wohnungssuche

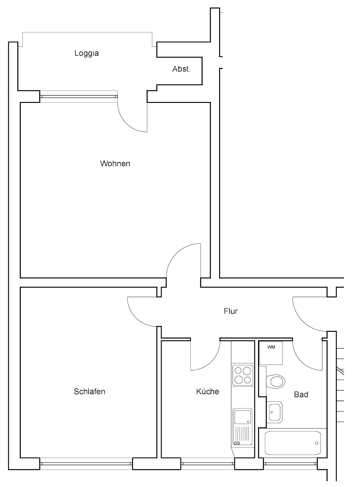
Ilmweg 30, 4 L - Praktische 2 Zimmer Wohnung mit Tageslichtbad und Loggia. Anmietung NUR mit WBS!

Gesamtmiete
528,78 €
Wohnfläche
57,55 m²
Zimmer
2

Elbeviertel
Ilmweg 30, 38120 Braunschweig


Wohnung Anfragen
  • Balkon/Terrasse
  • Badewanne

Informationen

Etage 4
Wohnfläche 57,55 m²
Baujahr 1973
Primärer Energieträger Gas
Art des Energieausweises Energieverbrauchsausweis
Energieverbrauchskennwert kWh/(m²*a) 122,00
Effizienzklasse D
Bezugsfrei 01.02.2026

Kosten

Grundmiete 291,78 €
Vorauszahlung Heizung/WW 83,00 €
Vorauszahlung Betriebskosten 154,00 €
Gesamtmiete 528,78 €
Mietkaution* 875,34 €
* = in drei Ratenzahlungen möglich

Objektbeschreibung

Lage

Wohnen mit Aussicht! Die Mehrfamilienhäuser mit bis zu acht Geschossen überragen ihre Umgebung bei weitem. Unseren Mietern verschaffen sie einen traumhaften Ausblick bis weit in das grüne Braunschweiger Umland hinein. Auch zu Fuß sind die Bewohner schnell in der Natur, zum Beispiel im Naherholungsgebiet Timmerlaher Busch. Für ein lebendiges harmonisches Miteinander sorgen die grünen Innenhöfe mit Bäumen und Spielplätzen, Nachbarschaftstreffs und Begegnungsstätten.

Viele der 2- bis 3-Zimmer-Wohnungen sind modernisiert und bieten einen fantastischen Ausblick! So ist es nicht verwunderlich, dass der ungehinderte Blick ins Grüne für viele den besonderen Charme des Elbeviertels ausmacht. Aber auch zwischen den Mehrfamilienhäusern sorgen grüne Innenhöfe mit Bäumen und großzügig angelegte Spiel- und Rasenflächen für ein angenehmes Wohngefühl. Ein weiteres Plus dieses Quartiers sind die nahegelegenen Gästewohnungen der Nibelungen.

Alle Besorgungen des täglichen Bedarfs können bequem zu Fuß erledigt werden. Neben Supermarkt, Bäckerei, Sparkasse und Apotheke ist vor allem das Einkaufszentrum an der Elbestraße mit seinem Wochenmarkt eine tolle Einkaufsgelegenheit. Junge Familien finden sämtliche Betreuungs- und Bildungsangebote vor Ort: Kindergärten, Kitas, Grundschulen, eine Waldorfschule und auch eine Gesamtschule sind für den Nachwuchs in wenigen Gehminuten erreichbar. In diesem Quartier muss sich niemand langweilen! Sportvereine, Fitnesscenter, Jugendtreff, Indoor-Minigolf und Ponyhof locken mit tollen Freizeitangeboten. Wer einfach nur raus in die Natur möchte, kommt ebenfalls auf seine Kosten, denn das Quartier grenzt direkt an das grüne Umland der Stadt. Gartenfreunde freuen sich über die vielen Kleingartenvereine in direkter Nähe!

Pendler schätzen die nahe gelegene Auffahrt zur A 391, die sie fix auf die A 39 und A2 nach Hannover, Salzgitter oder Wolfsburg bringt. Durch die gute Anbindung an den öffentlichen Nahverkehr ist die Innenstadt nur wenige Minuten entfernt.

Lernen Sie das ganze Quartier kennen

Elbeviertel

Elbeviertel

LEBENDIG. VIELFÄLTIG. HERAUSRAGEND.

Sie verwenden einen veralteten Browser
Dies stellt ein Sicherheitsrisiko für Ihr System dar und kann zu Darstellungsfehlern auf dieser Website führen.

Bitte installieren Sie einen aktuellen Browser.